Propriété

74 Rue du Sureau

Château-Richer, Capitale-Nationale G0A1N0

Maison à étages | MLS: 16160903

590 800 $ +tx

Description

Visite libre tous les dimanches de 13 h 00 à 16 h 00 à notre maison modèle située au 72, rue de la Randonnée à Boischatel. Rencontrez-nous pour découvrir la qualité de finition des maisons livrées par Reno Plourde. Profitez d'un vaste choix de plans et de matériaux pour concevoir une propriété sur mesure. Certifiées NOVOCLIMAT, nos constructions s'adaptent à vos besoins. Les fils électriques sont enfouis. De nombreux terrains sont disponibles, et nous construisons dans toute la région de la Capitale-Nationale. Consultez notre site web pour découvrir tous nos modèles modifiables ainsi que le site de la GCR pour constater notre cote exemplaire.

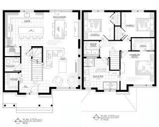
Modèle L'Élégant https://www.constructionsrenoplourde.ca

Inclus : Planchers en chêne blanc brossé au rez-de-chaussée et à l'étage, escaliers en merisier menant à l'étage, garantie 5 ans GCR, gouttières, aspirateur central et accessoires, certification NOVOCLIMAT, sortie de 50 ampères pour voiture électrique, chauffe-eau de 60 gallons.

Exclus : Aménagement paysager et aménagement du sous-sol

Location


Détails des pièces

Chambre Dimensions Niveau Revêtement
Autre 26.6 x 28.8 P Rez-de-chaussée
Autre 26.6 x 28.8 P Rez-de-chaussée
Autre 26.6 x 28.8 P 2ième étage
Autre 26.6 x 28.8 P 2ième étage
Autre 26.6 x 28.8 P Sous-sol
Autre 26.6 x 28.8 P Sous-sol

Caractéristiques

Sous-sol 6 pieds et plus, Non aménagé
Proximité Autoroute/Voie rapide, École primaire, École secondaire, Garderie/CPE, Golf, Hôpital, Parc-espace vert, Piste cyclable
Toiture Bardeaux d'asphalte
Efficacité énergétique Certification Novoclimat
Salle de bains/salle d'eau Douche indépendante
Équipement disponible Échangeur d'air
Énergie pour le chauffage Électricité
Stationnement Extérieur
Système d'égouts Municipal
Approvisionnement en eau Municipalité
Mode de chauffage Plinthes électriques
Fenêtres PVC
Zonage Résidentiel

Contactez-moi

J'accepte d'être contacté par Rachel Tremblay par appel, email et SMS. Pour vous désinscrire, vous pouvez répondre 'stop' à tout moment ou cliquer sur le lien de désinscription dans les emails. Des frais de message et de données peuvent s’appliquer. Politique de confidentialite et Condition de services.